UPPLÝSINGAR
Ísfélag Vestmannaeyja var stofnað 1. desember árið 1901 og er elsta starfandi hlutafélag landsins. Tilgangur félagsins var að byggja og reka íshús til geymslu á beitu og vinna þannig bæði útgerðarmönnum og bæjarfélaginu gagn.
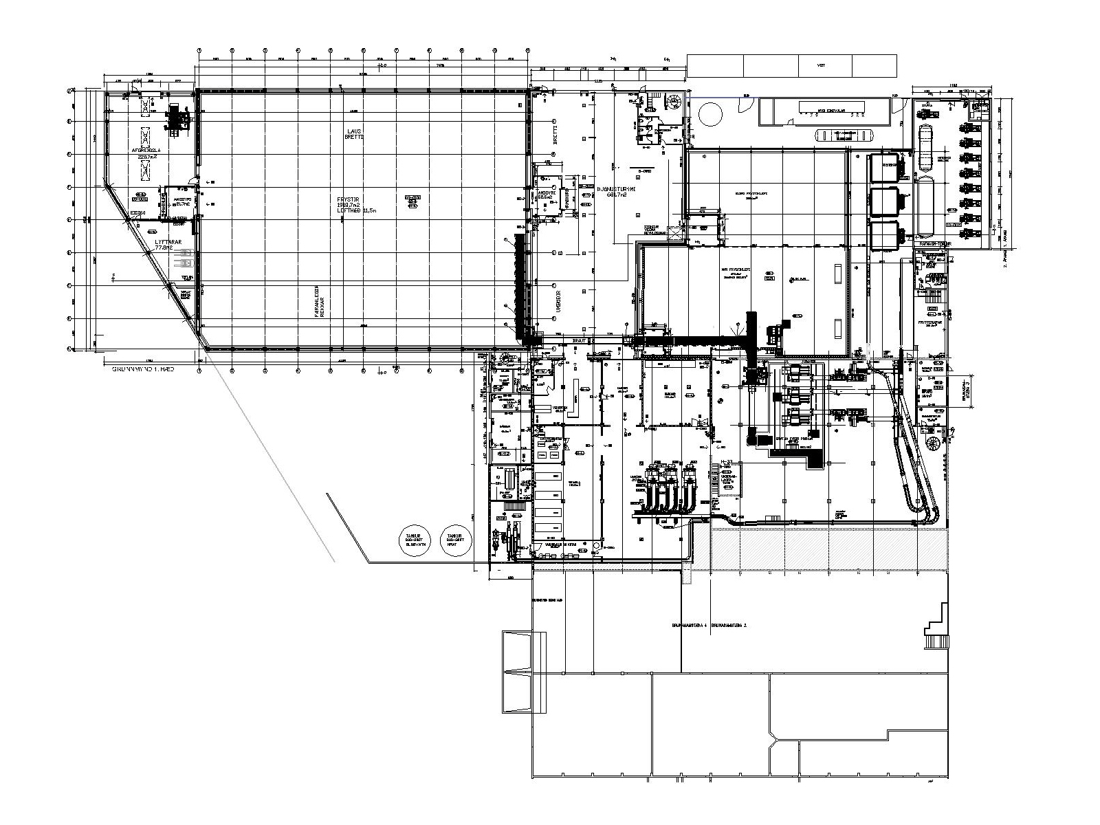
Frystihúsið á Strandvegi 102, Núverandi og nýbygging hefur verið í umsjón Teiknistofurnar.
TPZ teiknistofa sá um Alhliða hönnun byggingar









